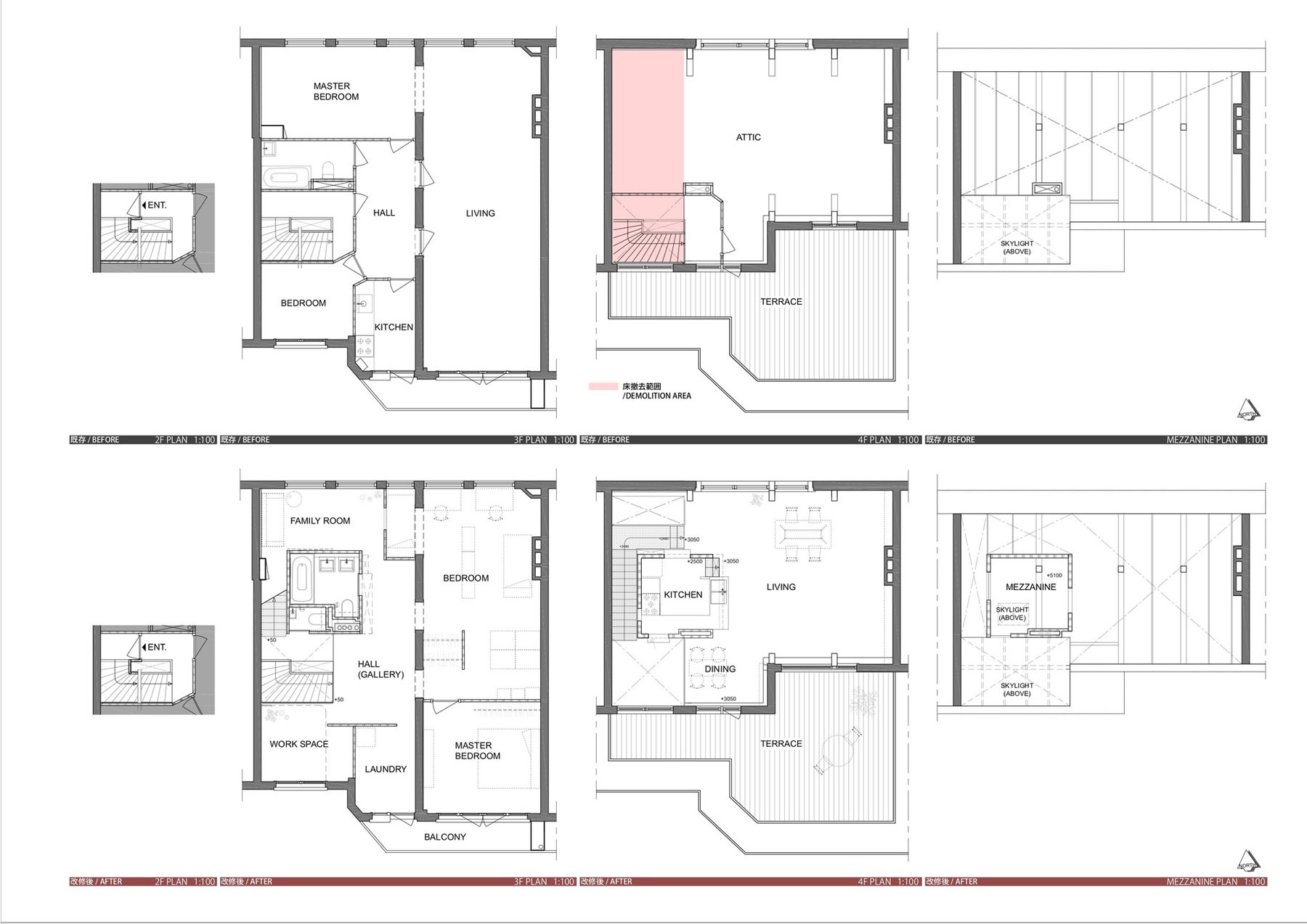
The renovation project of this duplex apartment in Amsterdam, the Netherlands by Japanese studio Mamm Design opened up the space to allow maximum sunlight to spread all over the home.
A symbolic tower-shaped element at the centre of the apartment runs through the kitchen. Grating stairs climb around the tower creating plenty of living space at each level.



















