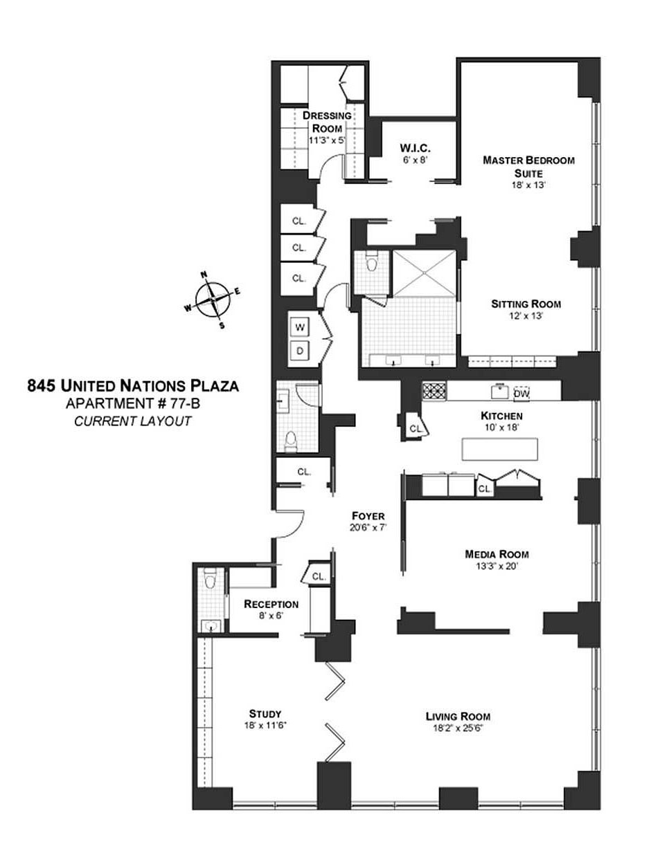
Located on the 77th floor of the Trump World Tower in Manhattan, this stunning penthouse offers breathtaking views of Manhattan skyline and the East River. Interior designer Mark Cunningham and architect Michael Gilmore worked on the renovation project of this 2,871 square foot condominium to create an elegant modern home.
Via: Elliman
















