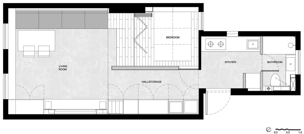
Small apartments can often feel claustrophobic. MoreDesignOffice managed to reconfigure a 538 sq. ft. apartment in Shanghai, China to make it feel spacious and open with a private bedroom space.
Folding doors to the bedroom can be open completely to create a larger space with plenty of light. The bedroom area is raised, allowing more storage under it. A partition wall at the centre of the apartment is clad with full height mirror to help expand the sense of space.















