Darien House in Cobham, Surrey, England is a modern prefabricated home by German architecture firm Huf Haus that offers the ultimate in contemporary living.
The stylish custom-made timber and glass home is an energy efficient sustainable home with bright and free-flowing spaces.
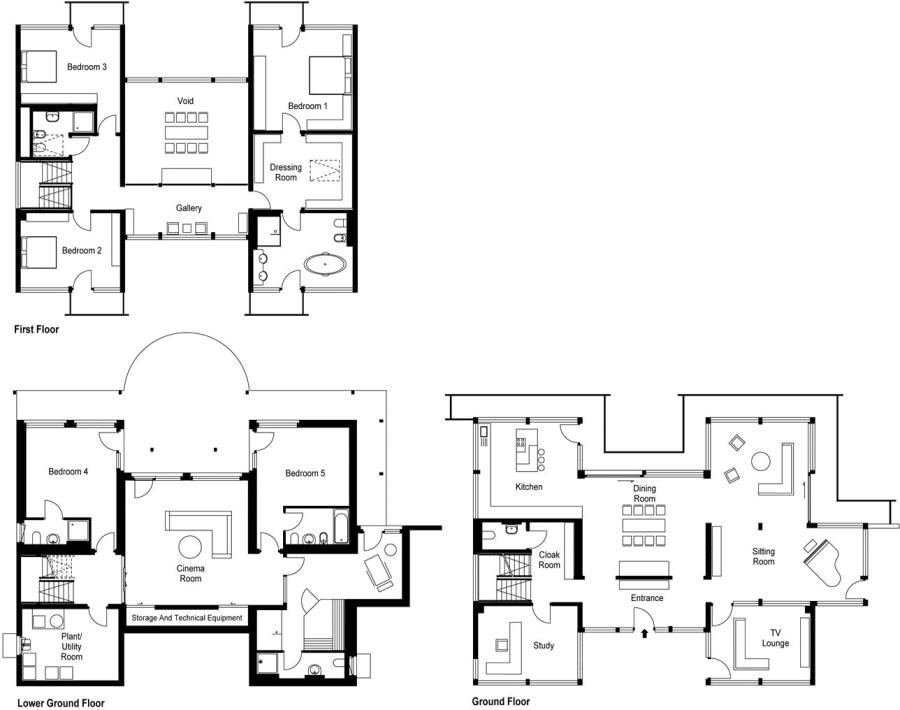
Actor Antonio Banderas purchased the 6,000 square foot post-and-beam home which boasts 5 bedrooms with a subterranean cinema room and a spa area with a sauna.


















