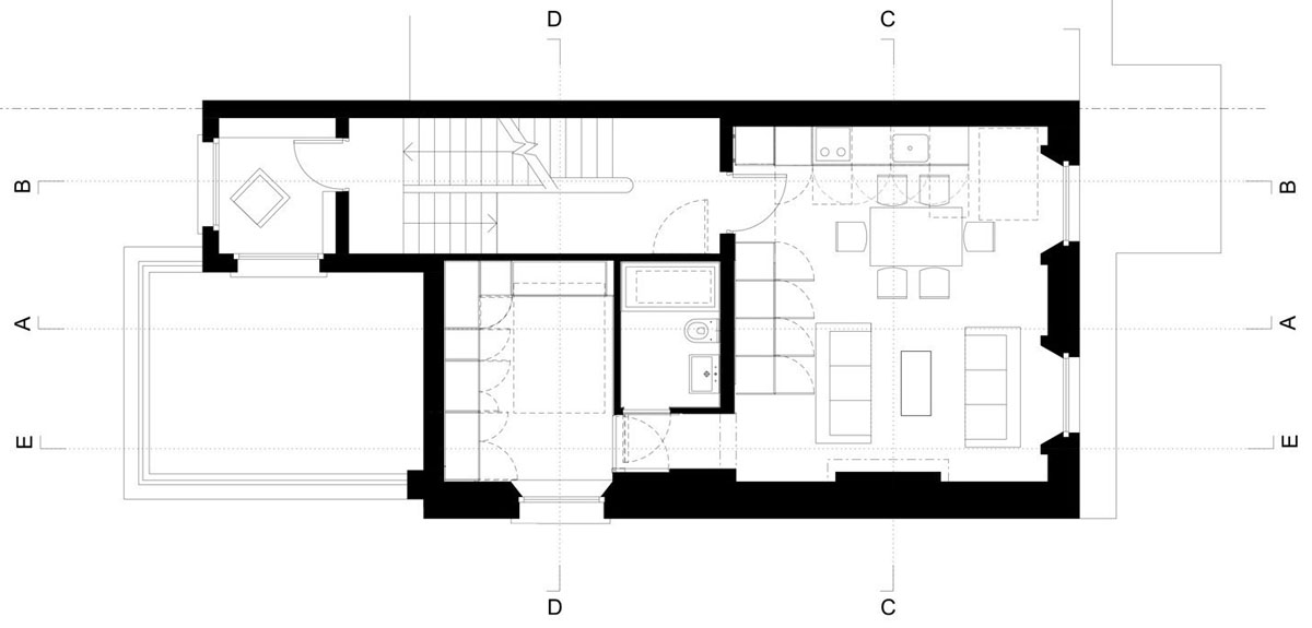
This small renovated one bedroom apartment in Westbourne Gardens, London, England has high ceiling heights, providing a sense of space and grandeur.
Nimtim Architects created three simple functional spaces – a compact kitchen, a marble bathroom and a bedroom with cherry veneer wood closets.
Photography by Megan Taylor
















