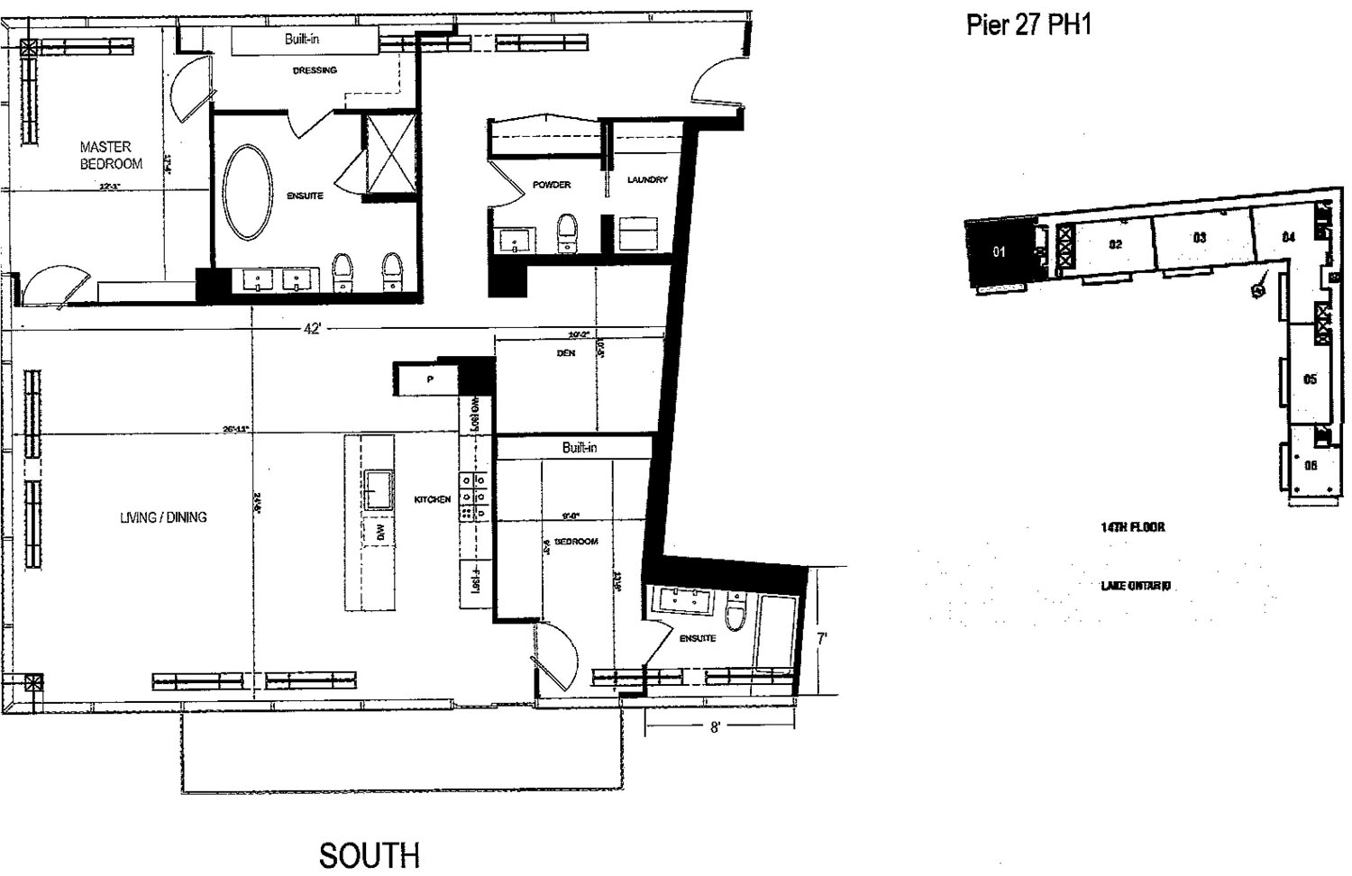
Located at Queens Quay East in Toronto, Ontario, Canada overlooking Lake Ontario, Pier 27 Penthouse is a resort style residential building with the most prestigious suites. This magnificent luxury apartment is the definition of urban chic.
Housed in a modern architectural landmark, it has 1,900 square foot of living space with 2 bedrooms plus den, 10 foot ceilings throughout, marble flooring and custom gourmet kitchen.
Via: Sotheby’s






























