Located in the affluent neighbourhood of Lagoa in Rio de Janeiro, Brazil, this 300 sqm (3,230 sq. ft.) two-floor penthouse designed by Ivan Rezende Arquitetura has a large terrace overlooking spectacular views.
The first floor consists of family room and three bedrooms with mahogany floorings. The second floor has Turkish travertine honed marble in the living room, dining room and terrace.
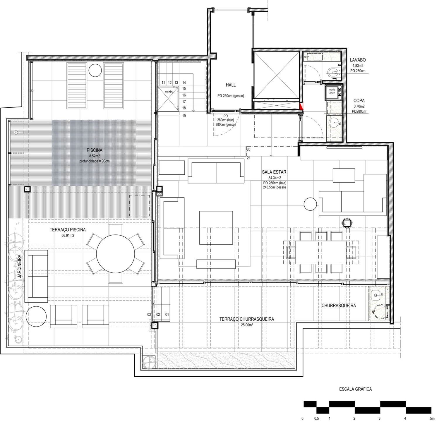
There is a 9-meter swimming pool with Italian Bisazza mosaic and artistic shadowy deck chairs on the terrace contrasting with the neutral tone of the rest of the living spaces.





















