Hidden in a peaceful courtyard in Paris, France, this tiny studio apartment was designed by Guillaume Jounet Lacoste for use as a pied-a-terre.
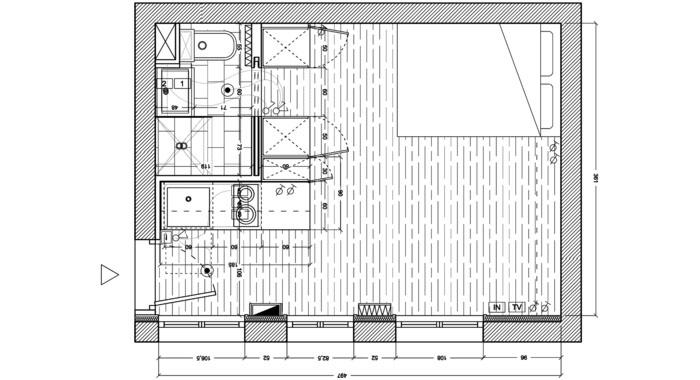
The kitchen, bathroom, wardrobe and laundry all fit in a massive cube, leaving plenty of open space for the living/sleeping area. The white walls brightens the small space and contrasts nicely with the rustic stone wall.










