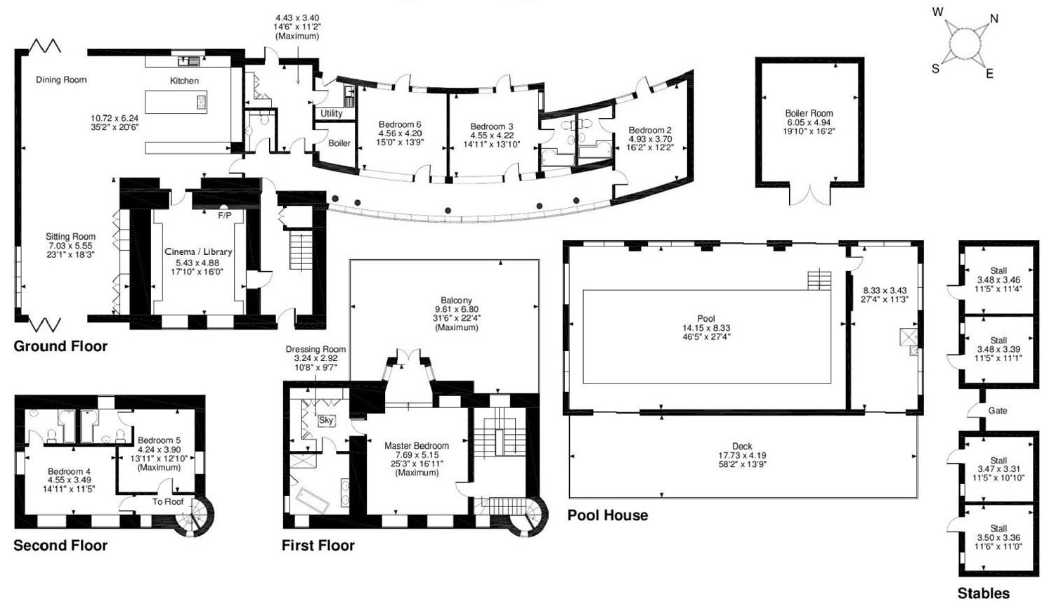
Originally built in the 18th century as a stone hunting lodge in Kemeys Inferior, Newport, South Wales, this restored castle-like folly features a contemporary wraparound glass extension.
Nestled on a hilltop with spectacular views over the Vale of Usk, the 24-acre property offers formal gardens and outbuildings including a detached leisure building with indoor swimming pool.
The main living area has an open plan kitchen, and the master bedroom has a huge balcony/terrace.
An exquisite single storey curved structure is part of the cutting edge design with a glass corridor.

See Also: Fairytale Castle In The Sky At Ruxley Towers
Via: Zoopla




