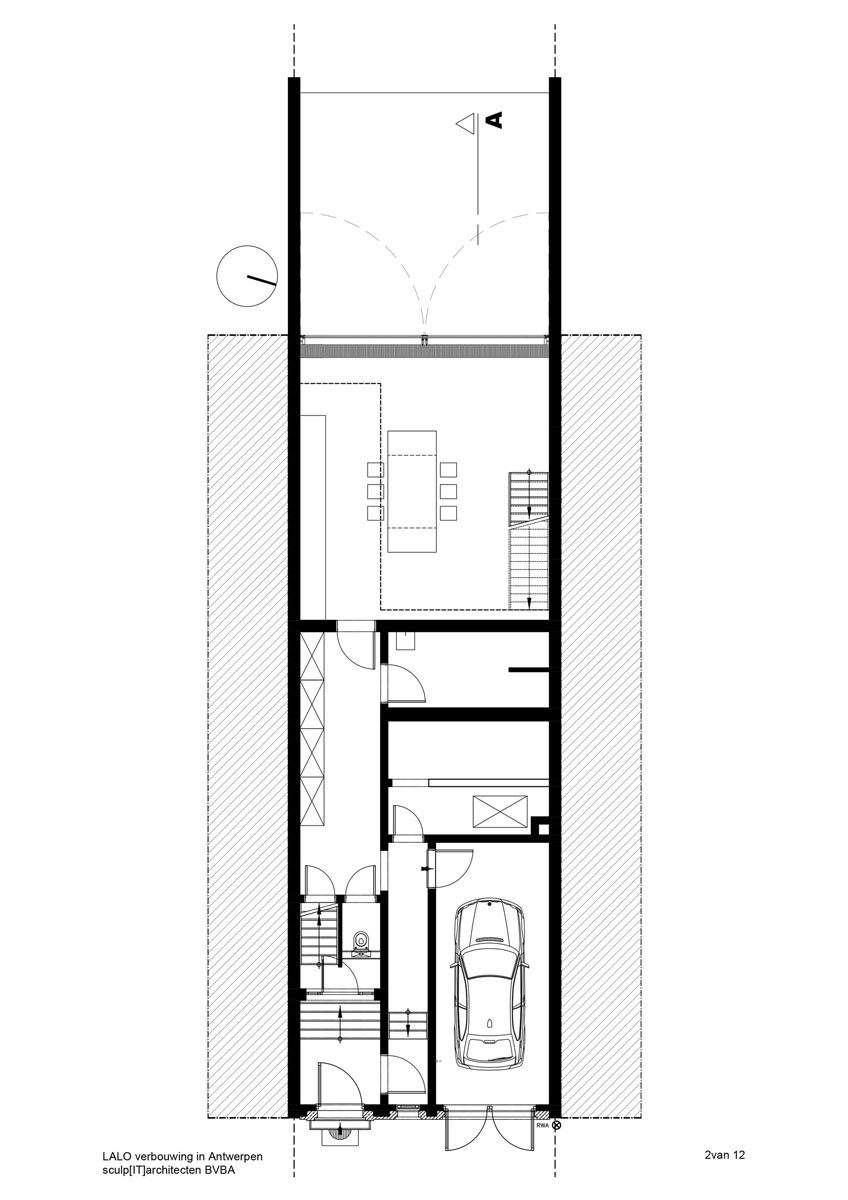
The new built rear extension of an old Bourgeois town house in Antwerp, Belgium is a contemporary masterpiece with the world’s largest pivoting windows.
Designed by Sculp[IT], the huge windows measure 3 meters wide by 6 meters high (approx.10 foot by 20 foot) provide plenty of natural light to all three levels of the house.





















